ZeOn Δημοσιεύτηκε Σεπτέμβριος 21, 2004 #1 Δημοσιεύτηκε Σεπτέμβριος 21, 2004 Ψαχνω για μια καλη σελίδα με πληροφοριες για water cooling????
greekfragma Σεπτέμβριος 21, 2004 #3 Σεπτέμβριος 21, 2004 καλως ηρθεςhttp://www.thelab.gr/forumdisplay.php?s=&forumid=47χαμηλα στις επιλογες βαζεις ''απο την αρχη'' στην χρονικη μπαρα....καλο διαβασμα
ZeOn Σεπτέμβριος 21, 2004 Author #5 Σεπτέμβριος 21, 2004 SetoS μήπως εχεις πληροφορίες και για την δομη ενος επεξεργαστή???
RootX Σεπτέμβριος 21, 2004 #6 Σεπτέμβριος 21, 2004 ZeOn, κάθε θέμα έχει ένα συγκεκριμένο αντικείμενο, αν τα μπλέκουμε, δεν θα βγάλουμε άκρη
Nikos007 Σεπτέμβριος 22, 2004 #7 Σεπτέμβριος 22, 2004 Μιας και ψαχνουμε πληροφοριες για w/c ξερει κανεις για athlon xp τι διαστασεις πρεπει να εχει το block εξωτερικά και ποιο το παχος του? Σκεφτομαι να ξεκινισω να φτιαξω ενα.
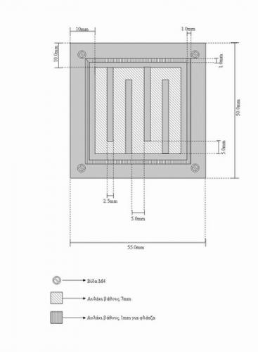
problem Σεπτέμβριος 22, 2004 #8 Σεπτέμβριος 22, 2004 Αρχική απάντηση από Nikos007 [Σήμερα, στις 20:00] Μιας και ψαχνουμε πληροφοριες για w/c ξερει κανεις για athlon xp τι διαστασεις πρεπει να εχει το block εξωτερικά και ποιο το παχος του? Σκεφτομαι να ξεκινισω να φτιαξω ενα. Αυτό που σχεδίασα εγώ πάντως έχει πάχος 10mm και είναι κάπως έτσι:
problem Σεπτέμβριος 22, 2004 #9 Σεπτέμβριος 22, 2004 Και μέχρι τώρα δουλεύει μια χαρά με ένα Athlon XP 2.8
eleven Σεπτέμβριος 22, 2004 #11 Σεπτέμβριος 22, 2004 Αρχική απάντηση από Nikos007 Μιας και ψαχνουμε πληροφοριες για w/c ξερει κανεις για athlon xp τι διαστασεις πρεπει να εχει το block εξωτερικά και ποιο το παχος του? Σκεφτομαι να ξεκινισω να φτιαξω ενα. Οι διαστάσεις του μπλοκ είναι εξάρτηση αρκετών παραγόντων Απο το πολύ απλο τι υλικό εχεις στα χερια σου και φτανουμε στην εσωτερική σχεδίαση ,εμφάνιση ευκολία κατασκευής κτλ Αν μας πεις τι εργαλεία εχεις στην διαθεση σου μπορώ να σου προτείνω μερικά ακομα σχέδια
deathlok Σεπτέμβριος 22, 2004 #12 Σεπτέμβριος 22, 2004 παιδιά να ρωτήσω και εγώ κάτι.όσοι εχετε φτιάξει χάλκινά μπλόκ απο πού πήρατε το αρχικό κομμάτι και πόσο;
Skinny13 Σεπτέμβριος 22, 2004 #13 Σεπτέμβριος 22, 2004 Eγω για μπλοκ ειχα παρει μια μεγακη πλακα χακου,πολλα κιλα,απο εκει να φανταστεις μου βγηκαν καπου 25 μπλοκςτο πηρα απο Εμποροχαλκο (Ερμου) τιμη 6 ε/κιλο
deathlok Σεπτέμβριος 22, 2004 #14 Σεπτέμβριος 22, 2004 6 ευπώ το κιλό!!!και εγώ σε κάποια σελίδα είδα 6 το κομμάτι.για πες μονο τι πάχος να ζητήσω και προφανώς μπορώ να πάρω ένα σχετικα μικρό κομμάτι που να βγαίνουν τεσσέρα πέντε μπλόκ και όχι 1000 (δεν θα γίνω κατασκευάστησ!!). και μια διέυθυνση αν θυμάσε!
Nikos007 Σεπτέμβριος 23, 2004 #15 Σεπτέμβριος 23, 2004 Αρχική απάντηση από eleven [Χθες, στις 22:48] Οι διαστάσεις του μπλοκ είναι εξάρτηση αρκετών παραγόντων Απο το πολύ απλο τι υλικό εχεις στα χερια σου και φτανουμε στην εσωτερική σχεδίαση ,εμφάνιση ευκολία κατασκευής κτλ Αν μας πεις τι εργαλεία εχεις στην διαθεση σου μπορώ να σου προτείνω μερικά ακομα σχέδια Εχω μηχανουργειο τορνο πλανη δραπανο. Φρεζα δεν εχω αλλα παω αλλου οποτε και αυτη διαθεσιμη. Σκεφτομαι να δοκιμασω να φτιαξω ενα μπλοκ για athlon xp. Αν μπορεις να με βοηθησεις θα σου ειμαι υποχρεως. Επεισης θα φτιαξω και μια δεξαμενη απο plexi. Ολα αυτα θα μπορουσα να τα αγορασω αλλα εχω το μικροβιο της δημιουργιας ως μηχανολογος. Υποθετω οτι με καταλαβαινεις.
eleven Σεπτέμβριος 23, 2004 #16 Σεπτέμβριος 23, 2004 Απόλυτα.........Λοιπόν δυστυχώς η φρέζα ειναι το πιο απαραίτητο εργαλείο αλλα μια που έχεις πρόσβαση δεν υπάρχει πρόβλημαΔιαβασε εδώκατσκευή waterblock και πολλά άλλα θα βρείς ο΄τι θέλεις Θα πρότεινα ενα μπλόκ τύπου Rotor για τι ειίναι το πιο εύκολο στην κατασκευή και μαλον δεν θα χρειαστείς ούτε φρέζαΓια τον χαλκό αγορασε τον σε βεργες θα πρότεινα 50χ10χοσο μηκος θέλεις για το σώμα του μπλόκ και 50χ5χοσο μηκος θέλεις για τα καπάκια Για το μπλόκ του Rotor 50x5 και για το σωμα πιστευω ειναι οκ Αν τώρα θέλεις να βάλεις καπάκι απο πλέξι τα πράγματα δυσκολεύουν λίγο γιατί θα χρειαστεί να κάνεις και κανάλι για o-ring αλλα και να κατεγραστείς το πλέξι στις κατάληλες διαστάσεις Το ιδιο ισχυεί και για την κατασκευή τάνκ απο πλέξιΟταν καταλήξεις στο σχέδιο που θα κάνεις ισως μπορέσω να σε βοηθήσω περισότερο
Nikos007 Σεπτέμβριος 23, 2004 #17 Σεπτέμβριος 23, 2004 Ok eleven thanks θα μελετησω αρκετα και θα σου πω σε τι θα καταληξω να μου πεις τη γνωμη σου. Σε περιπτωση που δεν χρησιμοποιησω plexi το καπακι το χαλκινο πως το κολλας?
eleven Σεπτέμβριος 23, 2004 #18 Σεπτέμβριος 23, 2004 Με καλαί Παρε αυτο με την 1μμ διατομή, παντα με σολντερίνη μεσα Αποφυγε χοντρότερες διατομές γιατι κατα το κόλλημα η σολντερινη θα σε δυσκολέψει πολύ (εχει την ταση να "σκαει" και να πιστιλάει )Καλο θα ήταν να επεξεργαστείς εξωτερικα το μπλοκ μετα την κόλληση για αισθητικούς αλλα και πρακτικούς λόγους και φρόντισε ο χαλκός πριν τον κολλήσεις να είναι "καθαρός" Τριψτον με γυαλόχρτο για να απομακρύνεις το επιφανειακό στρώμα οξείδωσης που δημιουργείται Καλη συνέχεια
Recommended Posts
Archived
This topic is now archived and is closed to further replies.